兵庫県 尼崎市西難波町2丁目(売買 中古一戸建て) | 尼崎市西難波町 - 西宮市周辺の不動産探しは ヤマダ不動産西宮甲子園店 株式会社MyHomeDo

尼崎市西難波町2丁目(売買 中古一戸建て) | 尼崎市西難波町 | 西宮市周辺の不動産探しは ヤマダ不動産西宮甲子園店 株式会社MyHomeDo

尼崎市西難波町2丁目 | 尼崎市西難波町の不動産物件

\月々支払い8万円台/頭金0円OK!
■駐車スペース有
■サンディ尼崎南七松店 徒歩7分
■オール電化
■太陽光発電
■全居室収納
■ご成約でヤマダポイントプレゼント♪
【中古一戸建て】 駐車場あり オール電化
価格 3,280万円 (税無)
阪神電鉄本線 出屋敷駅 徒歩16分
スマホ表示
物件コード:114490
所在地 建物面積
土地面積
間取り 築年月
兵庫県尼崎市西難波町2丁目 79.07m2
76.94m2
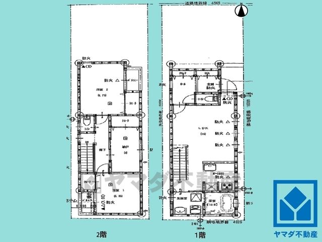
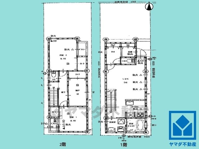
2SLDK 2017/08

物件基本情報

▲白を基調とした清潔感のある外観。帰るたびに安心感を感じられる佇まい。
▲2SLDK、土地面積76.94平米、建物面積79.07平米、木造2階建。
物件種目 中古一戸建て
物件名称 尼崎市西難波町2丁目
所在地 兵庫県尼崎市西難波町2丁目
交通
阪神電鉄本線 出屋敷駅 徒歩16分
東海道本線 立花駅 徒歩18分
階数 2階建
建物構造 木造
建ぺい率/容積率 60% / 200%
駐車場 有 (1台)
学校 難波小学校 / 中央中学校
設備・条件
  • オール電化
  • 床下収納
  • カウンターキッチン
  • バス・トイレ別
ヤマダ不動産 西宮甲子園店
Tel0798-78-9077
お気軽にお問い合わせください。

画像・写真

  • 阪神電鉄本線「出屋敷」駅まで徒歩約16分、JR東海道本線「立花」駅まで徒歩約18分、阪神電鉄なんば線「尼崎」駅まで徒歩約25分の立地。
    阪神電鉄本線「出屋敷」駅まで徒歩約16分、JR東海道本線「立花」駅まで徒歩約18分、阪神電鉄なんば線「尼崎」駅まで徒歩約25分の立地。
  • 3沿線利用可能で、毎日の通勤・通学だけでなく、休日のお出かけまで利便性に優れています。
    3沿線利用可能で、毎日の通勤・通学だけでなく、休日のお出かけまで利便性に優れています。
  • 北東側・南西側の両面バルコニーで陽当たり、風通し良好。バルコニーが2か所ございますので、お洗濯物をたっぷりと干す事ができます。
    北東側・南西側の両面バルコニーで陽当たり、風通し良好。バルコニーが2か所ございますので、お洗濯物をたっぷりと干す事ができます。
  • 玄関が横向きのため道路から家の中が見えにくく、高いプライバシー性を確保できます。お子様の飛び出し防止にも効果的です。
    玄関が横向きのため道路から家の中が見えにくく、高いプライバシー性を確保できます。お子様の飛び出し防止にも効果的です。
  • ハイルーフ車可能なカーポート付きの駐車スペースを1台分完備。重い荷物や雨の日の移動もスムーズで、快適なカーライフを実現。
    ハイルーフ車可能なカーポート付きの駐車スペースを1台分完備。重い荷物や雨の日の移動もスムーズで、快適なカーライフを実現。
  • 前面道路幅員約6.0mとゆったりとした広さがあるのでファミリーカー等の車の出入りも楽にできます。
    前面道路幅員約6.0mとゆったりとした広さがあるのでファミリーカー等の車の出入りも楽にできます。
  • 「ファミリーマート西難波町」まで徒歩4分、「スギドラッグ尼崎南七松店」まで徒歩5分、「サンディ尼崎南七松店」まで徒歩7分など、お買い物施設が徒歩圏内に複数あり便利な住環境です。
    「ファミリーマート西難波町」まで徒歩4分、「スギドラッグ尼崎南七松店」まで徒歩5分、「サンディ尼崎南七松店」まで徒歩7分など、お買い物施設が徒歩圏内に複数あり便利な住環境です。
  • タイヤのブランコや動物のオブジェなどユニークな遊具が豊富な「西難波公園」まで徒歩2分。公園の一角に交番があり、安心してお子さまが遊べるため、子育て世帯の方にもお勧めです。
    タイヤのブランコや動物のオブジェなどユニークな遊具が豊富な「西難波公園」まで徒歩2分。公園の一角に交番があり、安心してお子さまが遊べるため、子育て世帯の方にもお勧めです。
  • 南側へ車で2分ほど下ると国道2号線が通っています。名神高速道路の尼崎インターチェンジも下道10分圏内で神戸方面や大阪方面へ出やすく、車での移動にも便利な住環境です。
    南側へ車で2分ほど下ると国道2号線が通っています。名神高速道路の尼崎インターチェンジも下道10分圏内で神戸方面や大阪方面へ出やすく、車での移動にも便利な住環境です。
  • 火を使わないため安心・安全。家族と環境に優しいオール電化住宅。
    火を使わないため安心・安全。家族と環境に優しいオール電化住宅。
  • 太陽光発電システム搭載。自家発電した電気を使うことで電気代の節約になると同時に、電気料金に含まれる再エネ賦課金の支払い額の削減にも繋がります。
    太陽光発電システム搭載。自家発電した電気を使うことで電気代の節約になると同時に、電気料金に含まれる再エネ賦課金の支払い額の削減にも繋がります。
  • 広々15帖のLDKが魅力。家族全員がリラックスできる、ゆったりとした快適リビングで温かい団らんの時間を。
    広々15帖のLDKが魅力。家族全員がリラックスできる、ゆったりとした快適リビングで温かい団らんの時間を。
  • コミュニケーションがとりやすいリビング階段の住宅。移動の際にLDKを通る生活動線なので、ご家族と顔を合わせる機会が増えます。
    コミュニケーションがとりやすいリビング階段の住宅。移動の際にLDKを通る生活動線なので、ご家族と顔を合わせる機会が増えます。
  • 対面式のセパレートキッチンなのでお料理中でもお子様の様子が分かって安心です。
    対面式のセパレートキッチンなのでお料理中でもお子様の様子が分かって安心です。
  • キッチンには窓がございますので、昼間は手元が明るく、お料理がはかどります。
    キッチンには窓がございますので、昼間は手元が明るく、お料理がはかどります。
  • 浴室には小窓が付いているので明るく、こもりがちな湿気もすぐ取り除くことができます。
    浴室には小窓が付いているので明るく、こもりがちな湿気もすぐ取り除くことができます。
  • 室内洗濯機置場がございますので、天候に左右されず洗濯していただけます。
    室内洗濯機置場がございますので、天候に左右されず洗濯していただけます。
  • 洗面室には床下収納があり、消耗品などもスッキリ片づけることができます。
    洗面室には床下収納があり、消耗品などもスッキリ片づけることができます。
  • トイレが1階と2階にあるので、朝の忙しい時間にも混雑せず快適です。
    トイレが1階と2階にあるので、朝の忙しい時間にも混雑せず快適です。
  • 全居室フローリングでお掃除ラクラクです。
    全居室フローリングでお掃除ラクラクです。
  • 全居室に収納がございますので、お部屋の広さを最大限に活用できます。
    全居室に収納がございますので、お部屋の広さを最大限に活用できます。
  • たっぷり収納できる約4帖の納戸付きだから、家の中をもっとスッキリ。季節の荷物や趣味の道具もしっかり収納。
    たっぷり収納できる約4帖の納戸付きだから、家の中をもっとスッキリ。季節の荷物や趣味の道具もしっかり収納。
  • 納戸は収納付きの洋室としてもお使いいただけます。独立したお部屋なのでプライベートな時間をゆったり過ごせそうです。
    納戸は収納付きの洋室としてもお使いいただけます。独立したお部屋なのでプライベートな時間をゆったり過ごせそうです。
  • 玄関にはシューズボックスを完備。家族の靴もしっかり収納できるので、玄関がいつも片付き、気持ちよくお客様を迎えられます。
    玄関にはシューズボックスを完備。家族の靴もしっかり収納できるので、玄関がいつも片付き、気持ちよくお客様を迎えられます。
  • 家族との時間も、自分だけの時間も心地よく過ごせる。
    家族との時間も、自分だけの時間も心地よく過ごせる。
  • シンプルで飽きのこない設計が、暮らしに余白をもたらします。
    シンプルで飽きのこない設計が、暮らしに余白をもたらします。
  • この住宅は、日々の暮らしをそっと支えてくれます。
    この住宅は、日々の暮らしをそっと支えてくれます。
  • ローンのご相談も承っております。
    ローンのご相談も承っております。
  • 様々な住まいのお悩みもご相談ください。
    様々な住まいのお悩みもご相談ください。
  • お客様それぞれにあったマイホームご購入をお手伝いいたします。
    お客様それぞれにあったマイホームご購入をお手伝いいたします。
  • ご成約でヤマダポイントプレゼント中です。お問合せお待ちしております。
    ご成約でヤマダポイントプレゼント中です。お問合せお待ちしております。
  • 白を基調とした清潔感のある外観。帰るたびに安心感を感じられる佇まい。
    白を基調とした清潔感のある外観。帰るたびに安心感を感じられる佇まい。
  • 阪神電鉄本線「出屋敷」駅まで徒歩約16分、JR東海道本線「立花」駅まで徒歩約18分の立地。3沿線利用可能で、毎日の通勤・通学だけでなく、休日のお出かけまで利便性に優れています。
    阪神電鉄本線「出屋敷」駅まで徒歩約16分、JR東海道本線「立花」駅まで徒歩約18分の立地。3沿線利用可能で、毎日の通勤・通学だけでなく、休日のお出かけまで利便性に優れています。
  • 前面道路幅員約6.0mとゆったりとした広さがあるのでファミリーカー等の車の出入りも楽にできます。
    前面道路幅員約6.0mとゆったりとした広さがあるのでファミリーカー等の車の出入りも楽にできます。
  • ハイルーフ車可能なカーポート付きの駐車スペースを1台分完備。重い荷物や雨の日の移動もスムーズで、快適なカーライフを実現。
    ハイルーフ車可能なカーポート付きの駐車スペースを1台分完備。重い荷物や雨の日の移動もスムーズで、快適なカーライフを実現。
  • 「ファミリーマート西難波町」まで徒歩4分、「スギドラッグ尼崎南七松店」まで徒歩5分、「サンディ尼崎南七松店」まで徒歩7分など、お買い物施設が徒歩圏内に複数あり便利な住環境です。
    「ファミリーマート西難波町」まで徒歩4分、「スギドラッグ尼崎南七松店」まで徒歩5分、「サンディ尼崎南七松店」まで徒歩7分など、お買い物施設が徒歩圏内に複数あり便利な住環境です。
  • 火を使わないため安心・安全。家族と環境に優しいオール電化住宅。
    火を使わないため安心・安全。家族と環境に優しいオール電化住宅。
  • 太陽光発電システム搭載。自家発電した電気を使うことで電気代の節約になると同時に、電気料金に含まれる再エネ賦課金の支払い額の削減にも繋がります。
    太陽光発電システム搭載。自家発電した電気を使うことで電気代の節約になると同時に、電気料金に含まれる再エネ賦課金の支払い額の削減にも繋がります。

コメント

□■ヤマダ不動産 西宮甲子園店■□

━━物件のオススメPOINT━━
■阪神・JRの2沿線利用可能
■カーポート1台分あり
■オール電化
■太陽光発電
■全居室収納、床下収納、納戸、SICあり
■全居室フローリング
■対面式キッチン
■南西・北東両面バルコニー
■前道約6m
■周辺環境充実

━━周辺環境━━
■阪神「出屋敷駅」徒歩16分
■難波小学校 徒歩13分
■中央中学校 徒歩15分
■サンディ尼崎南七松店 徒歩7分

〇ご成約でヤマダポイントプレゼント&ヤマダデンキで家具家電購入時の割引特典!
☆☆ご内覧・ご相談のご予約受付中☆☆
お気軽にお問合せ下さい♪→0798-78-9077

周辺地図

Google Mapサイトを開く緯度34.728008経度135.40393

物件詳細情報

物件用途 居住用 地目 宅地
間取り詳細 LDK15畳(1F)、洋6.7畳(2F)、洋5.2畳(2F)、その他4畳(2F) 都市計画 市街化区域
建物向き - 用途地域 第一種中高層住居専用地域
土地面積基準 公簿 接道 公道 北 幅員6m (接面4.5m)
土地権利 所有権 私道面積 -
借地条件 - 道路位置指定 -
地代 - 不適合接道 -
建築確認番号 - セットバック -
現況 居住中 国土法届出 不要
引渡時期 相談 取引態様 仲介
設備その他 -
特記事項 -
備考 ■私道負担有 ■引渡しは契約後3ヶ月必要
情報更新日 2026/03/13 広告有効期限 2026/03/27
担当者 板橋 昭人
電話でお問い合わせ
ヤマダ不動産 西宮甲子園店 店舗情報
[所在地] 兵庫県西宮市浜松原町2-22 テックランド西宮甲子園店1階
[担当] 板橋 昭人
Tel0798-78-9077
お気軽にお問い合わせください。

このページをご覧の方に
おすすめの不動産物件