尼崎市大島1丁目(売買 新築一戸建て) | 尼崎市大島 | 西宮市周辺の不動産探しは ヤマダ不動産西宮甲子園店 株式会社MyHomeDo

尼崎市大島1丁目 | 尼崎市大島の不動産物件

\月々支払い9万円台/頭金0円OK!本日見学可能!
■駐車スペースあり
■省エネ基準適合住宅
■耐震等級3、断熱等級4、1次エネルギー等級4
■フラット35S(金利Aタイプ)に適応
■ご成約でヤマダポイントプレゼント♪
【新築一戸建て】 新築
価格 3,480万円 (税込)
東海道本線 甲子園口駅 徒歩16分
スマホ表示
物件コード:117828
所在地 建物面積
土地面積
間取り 築年月
兵庫県尼崎市大島1丁目 120.83m2
74.75m2
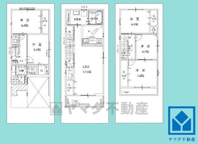
5LDK 2025/10

物件基本情報

▲落ち着いた色合いと直線的な美しさが調和したスタイリッシュモダンな外観。帰るたびに安心感を感じられる佇まい。
▲5LDK、土地面積74.75平米、建物面積120.83平米、木造3階建。2025年10月完成済。
物件種目 新築一戸建て
物件名称 尼崎市大島1丁目
所在地 兵庫県尼崎市大島1丁目
交通
東海道本線 甲子園口駅 徒歩16分
阪神電鉄本線 武庫川駅 徒歩20分
階数 3階建
建物構造 木造
建ぺい率/容積率 60% / 200%
駐車場 -
学校 成文小学校 / 大庄中学校
設備・条件
  • TVドアホン
  • 追い焚き
  • 浴室1坪以上
  • 食器洗乾燥機
  • カウンターキッチン
  • コンロ三口
  • システムキッチン
  • バルコニー
  • バス・トイレ別
ヤマダ不動産 西宮甲子園店
Tel0798-78-9077
お気軽にお問い合わせください。

画像・写真

  • プライバシー・採光に配慮された2階リビングです。シンプルで美しいデザインのリビングが、毎日の生活に彩りを添えます。
    プライバシー・採光に配慮された2階リビングです。シンプルで美しいデザインのリビングが、毎日の生活に彩りを添えます。
  • 広々17.5帖のLDKが魅力。家族全員がリラックスできる、ゆったりとした快適リビングで温かい団らんの時間を。
    広々17.5帖のLDKが魅力。家族全員がリラックスできる、ゆったりとした快適リビングで温かい団らんの時間を。
  • カウンターキッチンなので配膳や片付けがしやすく、お料理中でもお子様の様子が分かって安心です。
    カウンターキッチンなので配膳や片付けがしやすく、お料理中でもお子様の様子が分かって安心です。
  • 毎日の料理がもっとスムーズになる、便利な3口コンロ付き。毎日の家事の負担を軽減でき、水道代の節約にもなる食器洗乾燥機もございます。
    毎日の料理がもっとスムーズになる、便利な3口コンロ付き。毎日の家事の負担を軽減でき、水道代の節約にもなる食器洗乾燥機もございます。
  • 清潔感あふれる空間で、毎日のバスタイムをより快適に。真冬の寒い浴室を暖かく、また雨の日の洗濯物の乾燥にと多用途に活躍する浴室暖房乾燥機付きです。
    清潔感あふれる空間で、毎日のバスタイムをより快適に。真冬の寒い浴室を暖かく、また雨の日の洗濯物の乾燥にと多用途に活躍する浴室暖房乾燥機付きです。
  • バスタオルやパジャマ等を収納できるリネン庫。洗剤等のストックも収納できるので、洗面室をすっきり清潔に保つことができそうです。
    バスタオルやパジャマ等を収納できるリネン庫。洗剤等のストックも収納できるので、洗面室をすっきり清潔に保つことができそうです。
  • 収納付きでスッキリお使い頂ける3面鏡の洗面台です。洗面ボウルが広めなので、忙しい朝でも身支度がしやすく時短になります。
    収納付きでスッキリお使い頂ける3面鏡の洗面台です。洗面ボウルが広めなので、忙しい朝でも身支度がしやすく時短になります。
  • 明るく清潔感溢れるトイレです。温水洗浄便座付きで、季節を問わずいつでも温かい便座をお使いいただけます。
    明るく清潔感溢れるトイレです。温水洗浄便座付きで、季節を問わずいつでも温かい便座をお使いいただけます。
  • トイレが1階と2階にあるので、朝の忙しい時間にも混雑せず快適です。
    トイレが1階と2階にあるので、朝の忙しい時間にも混雑せず快適です。
  • 約5.6帖の1階洋室です。採光・プライバシーに配慮された高窓付きの洋室で、プライベートな時間をゆったり過ごせそうです。
    約5.6帖の1階洋室です。採光・プライバシーに配慮された高窓付きの洋室で、プライベートな時間をゆったり過ごせそうです。
  • お子様のお部屋などにも丁度良い広さです。
    お子様のお部屋などにも丁度良い広さです。
  • 約6帖の1階洋室です。全居室フローリングでお掃除ラクラクです。
    約6帖の1階洋室です。全居室フローリングでお掃除ラクラクです。
  • 全居室に窓がございます。明るい陽光がたっぷり差し込む心地よい生活空間です。
    全居室に窓がございます。明るい陽光がたっぷり差し込む心地よい生活空間です。
  • 約6帖の3階洋室です。独立した居室なのでプライベートな時間をゆったり過ごせそうです。
    約6帖の3階洋室です。独立した居室なのでプライベートな時間をゆったり過ごせそうです。
  • 全居室にクローゼットがございますので、お部屋の広さを最大限に活用できます。
    全居室にクローゼットがございますので、お部屋の広さを最大限に活用できます。
  • 約4.7帖の3階洋室です。シンプルで使いやすい洋室、充実した暮らしが広がる住まい。
    約4.7帖の3階洋室です。シンプルで使いやすい洋室、充実した暮らしが広がる住まい。
  • 約7帖の洋室とは続き間になっており、一体利用も可能です。
    約7帖の洋室とは続き間になっており、一体利用も可能です。
  • 約7帖の3階洋室です。2面採光の大きな窓からは明るい光が降り注ぎます。柔らかな光が差し込む洋室で、快適で落ち着いた生活をお送りいただけます。
    約7帖の3階洋室です。2面採光の大きな窓からは明るい光が降り注ぎます。柔らかな光が差し込む洋室で、快適で落ち着いた生活をお送りいただけます。
  • バルコニーにつながるお部屋で、通風・陽当たり良好。
    バルコニーにつながるお部屋で、通風・陽当たり良好。
  • ナチュラルな木目調のドアが落ち着いた雰囲気を演出し、訪れる人々を温かく迎えます。
    ナチュラルな木目調のドアが落ち着いた雰囲気を演出し、訪れる人々を温かく迎えます。
  • 玄関にはたっぷりの収納スペースを完備。家族の靴もしっかり収納できるので、玄関がいつも片付き、気持ちよくお客様を迎えられます。
    玄関にはたっぷりの収納スペースを完備。家族の靴もしっかり収納できるので、玄関がいつも片付き、気持ちよくお客様を迎えられます。
  • シンプルで洗練された玄関スペース。帰るたびにホッとできる、心地よい住まいの入り口。
    シンプルで洗練された玄関スペース。帰るたびにホッとできる、心地よい住まいの入り口。
  • 南向きバルコニーで陽当たり、風通し良好。
    南向きバルコニーで陽当たり、風通し良好。
  • 南向きバルコニーが2階と3階に1か所ずつございますので、お洗濯物をたっぷりと干す事ができます。
    南向きバルコニーが2階と3階に1か所ずつございますので、お洗濯物をたっぷりと干す事ができます。
  • 穏やかな暮らしを支える、豊かな収納。
    穏やかな暮らしを支える、豊かな収納。
  • クローゼットは奥行きがあるので、収納力も申し分ありません。
    クローゼットは奥行きがあるので、収納力も申し分ありません。
  • 新たに家具を買わなくても良いので、ハンガーパイプ付きのクローゼットは嬉しいですね。
    新たに家具を買わなくても良いので、ハンガーパイプ付きのクローゼットは嬉しいですね。
  • 大きなクローゼットなので整理整頓しやすいです。お洋服はもちろん、スーツケースなどの大物もしっかり収納できます。
    大きなクローゼットなので整理整頓しやすいです。お洋服はもちろん、スーツケースなどの大物もしっかり収納できます。
  • インナーガレージを普通乗用車1台分完備。重い荷物や雨の日の移動もスムーズで、快適なカーライフを実現。
    インナーガレージを普通乗用車1台分完備。重い荷物や雨の日の移動もスムーズで、快適なカーライフを実現。
  • 耐震等級3、省エネ基準適合住宅。長くお住まいいただけるよう細部までこだわり抜いた、災害に強く、冷暖房効率の高い住宅です。フラット35S(Aタイプ)利用可。
    耐震等級3、省エネ基準適合住宅。長くお住まいいただけるよう細部までこだわり抜いた、災害に強く、冷暖房効率の高い住宅です。フラット35S(Aタイプ)利用可。
  • JR東海道本線「甲子園口」駅まで徒歩約16分。「グルメシティ西大島店」まで徒歩7分などお買い物施設も徒歩圏内で、毎日の通勤・通学だけでなく、日常のお買い物や、休日のお出かけまで利便性に優れています。
    JR東海道本線「甲子園口」駅まで徒歩約16分。「グルメシティ西大島店」まで徒歩7分などお買い物施設も徒歩圏内で、毎日の通勤・通学だけでなく、日常のお買い物や、休日のお出かけまで利便性に優れています。
  • 落ち着いた色合いと直線的な美しさが調和したスタイリッシュモダンな外観。帰るたびに安心感を感じられる佇まい。
    落ち着いた色合いと直線的な美しさが調和したスタイリッシュモダンな外観。帰るたびに安心感を感じられる佇まい。
  • 広々17.5帖のLDKが魅力。家族全員がリラックスできる、ゆったりとした快適リビングで温かい団らんの時間を。
    広々17.5帖のLDKが魅力。家族全員がリラックスできる、ゆったりとした快適リビングで温かい団らんの時間を。
  • カウンターキッチンなので配膳や片付けがしやすく、お料理中でもお子様の様子が分かって安心です。
    カウンターキッチンなので配膳や片付けがしやすく、お料理中でもお子様の様子が分かって安心です。
  • 1日の疲れを癒す浴室でゆったりリフレッシュ。ナチュラルな木目調のアクセントパネルは落ち着いた雰囲気を演出してくれます。
    1日の疲れを癒す浴室でゆったりリフレッシュ。ナチュラルな木目調のアクセントパネルは落ち着いた雰囲気を演出してくれます。
  • トイレが1階と2階にあるので、朝の忙しい時間にも混雑せず快適です。
    トイレが1階と2階にあるので、朝の忙しい時間にも混雑せず快適です。
  • 玄関にはたっぷりの収納スペースを完備。家族の靴もしっかり収納できるので、玄関がいつも片付き、気持ちよくお客様を迎えられます。
    玄関にはたっぷりの収納スペースを完備。家族の靴もしっかり収納できるので、玄関がいつも片付き、気持ちよくお客様を迎えられます。
  • 南向きバルコニーが2階と3階に1か所ずつございますので、お洗濯物をたっぷりと干す事ができます。
    南向きバルコニーが2階と3階に1か所ずつございますので、お洗濯物をたっぷりと干す事ができます。
  • 清潔感あふれるシンクで、毎日を気持ちよくスタート。
    清潔感あふれるシンクで、毎日を気持ちよくスタート。
  • 毎日の家事の負担を軽減でき、水道代の節約にもなる食器洗乾燥機付き。
    毎日の家事の負担を軽減でき、水道代の節約にもなる食器洗乾燥機付き。
  • 毎日の料理がもっとスムーズに。便利な3口コンロ付きキッチン。
    毎日の料理がもっとスムーズに。便利な3口コンロ付きキッチン。
  • ボタン1つで自動でお湯張りができるオートバス機能付き。追い炊き機能もございますので、いつでも温かいお風呂に入ることができます。
    ボタン1つで自動でお湯張りができるオートバス機能付き。追い炊き機能もございますので、いつでも温かいお風呂に入ることができます。
  • 浴室暖房乾燥機付き。真冬の寒い浴室を暖かく、また雨の日の洗濯物の乾燥にと多用途に活躍する機能です。
    浴室暖房乾燥機付き。真冬の寒い浴室を暖かく、また雨の日の洗濯物の乾燥にと多用途に活躍する機能です。
  • 突然の来訪時でも安心なモニター付きインターホンを完備。お留守番中のお子様でも簡単に来訪者の確認ができます。
    突然の来訪時でも安心なモニター付きインターホンを完備。お留守番中のお子様でも簡単に来訪者の確認ができます。

コメント

□■ヤマダ不動産 西宮甲子園店■□

━━物件のオススメPOINT━━
■各居室に収納あり
■広々LDK17.5帖
■全居室フローリング
■カウンターキッチン
■2階3階に南側バルコニー
■1階・2階にトイレ

━━周辺環境━━
■JR「甲子園口駅」徒歩16分
■成文小学校 徒歩11分
■大庄中学校 徒歩21分
■グルメシティ西大島店 徒歩7分

〇ご成約でヤマダポイントプレゼント&ヤマダデンキで家具家電購入時の割引特典!
☆☆ご内覧・ご相談のご予約受付中☆☆
お気軽にお問合せ下さい♪→0798-78-9077

周辺地図

Google Mapサイトを開く緯度34.731174経度135.381276

物件詳細情報

物件用途 居住用 地目 宅地
間取り詳細 - 都市計画 市街化区域
建物向き - 用途地域 第一種住居地域
土地面積基準 公簿 接道 -
土地権利 所有権 私道面積 11.83m2
借地条件 - 道路位置指定 -
地代 - 不適合接道 -
建築確認番号 - セットバック -
現況 空家 国土法届出 不要
引渡時期 相談 取引態様 仲介
設備その他 -
特記事項 -
備考 -
情報更新日 2025/11/16 広告有効期限 2025/11/30
担当者 高橋敬也
電話でお問い合わせ
ヤマダ不動産 西宮甲子園店 店舗情報
[所在地] 兵庫県西宮市浜松原町2-22 テックランド西宮甲子園店1階
[担当] 高橋敬也
Tel0798-78-9077
お気軽にお問い合わせください。

このページをご覧の方に
おすすめの不動産物件